Kaltmiete
Fläche
Zimmer
Warmmiete
Die Wohnung kann frühestens zum 01.06.2025 angemietet werden.
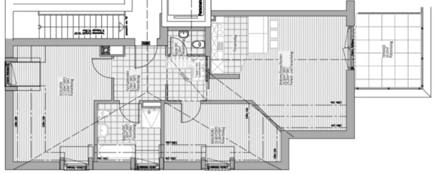
Angeboten wird eine wunderschöne Dachterrassenwohnung mit ca. 90 m² Wohnfläche (siehe Grundriss anbei)
Die individuelle Dachgeschosswohnung erfüllt gehobene Ansprüche an Wohnkomfort und Wohnambiente.
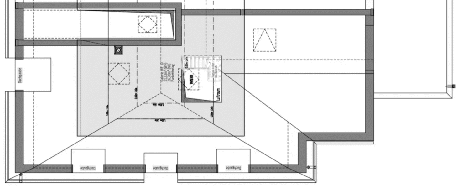
Sie verfügt über drei Zimmer (zzgl. Galerie), eine geräumige Diele mit Luftraum zur Galerie, eine Galerie, ein Bad mit Dusche und Badewanne, ein separates Gäste-Wc, eine hochwertige Markeneinbauküche mit Kochinsel sowie eine attraktive Dachterrasse in Süd-West Ausrichtung. Die Diele (mit Luftraum) und der Wohnraum haben beeindruckende Raumhöhen.
Details zur fortschrittlichen Haustechnik, zur hochwertigen Markeneinbauküche, den luxuriösen Bädern finden Sie in der nachfolgenden Beschreibung der Ausstattung.
Hinter dem ansprechenden Mehrfamilienhaus mit lediglich zehn Wohneinheiten erstreckt sich in süd-westlicher Richtung ein ansprechender Gemeinschaftsgarten mit beleuchtetem Springbrunnen. Die zu der hier angebotenen Wohnung gehörige Dachterrasse ist in Richtung des Gemeinschaftsgartens ausgerichtet und bietet schöne Blickachsen zum Springbrunnen und auf grüne Baumkronen.
Die Erschließung des Objekts vom Untergeschoss bis zum Dachgeschoss erfolgt über ein lichtdurchflutetes, geräumiges Treppenhaus und einen repräsentativen Aufzug: Beides ist mit sehr elegantem Natursteinboden (”Azul Noche”) ausgelegt.
Zur Wohnung gehört ein privates Kellerabteil sowie ein massiver Tiefgarageneinzelstellplatz. (Bzgl. Ladeoption für Elektrofahrzeuge siehe unten bei ”Ausstattung”).
Im Haus gibt es einen zentralen Fahrradraum, der bequem über die Tiefgaragenabfahrtsrampe erreicht werden kann, sowie eine Waschküche mit wohnungsindividuellen Stellplätzen für mietereigene Geräte (Waschmaschine und Trockner) sowie zusätzlich hochwertige Münzgeräte (Waschmaschine und Trockner).
Bei der Konzeption und Ausführung des Objekts wurde großer Wert auf Qualität, Schall- und Wärmeisolierung sowie Energieeffizienz gelegt.
Compare listings
VergleichenBitte geben Sie Ihren Benutzernamen oder Ihre E-Mail-Adresse ein. Sie erhalten einen Link, um ein neues Passwort per E-Mail zu erstellen.
